Healing Hands. Caring Hearts.
 Building a Quality Healthcare Future

No donation will be too small to make a difference. This important work will be supported largely by people like you…
your generosity will change lives.
Donations so far: $14,060.00

We’re sure you are aware of the important role that Blanca’s House plays in helping people whose lives are impacted by the lack of access to quality healthcare. Many do not receive the medical attention they need because adequate medical resources are not available because of poverty or access.
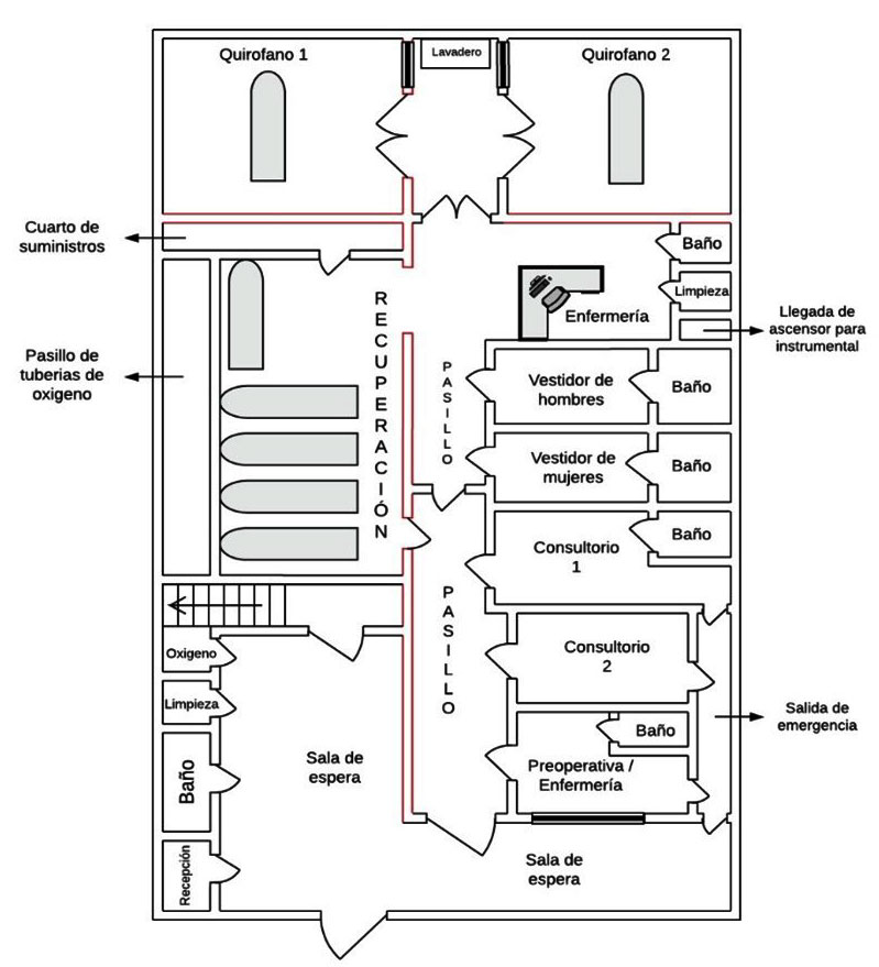
Since the start of the pandemic, all our medical missions have come to a halt…. but that doesn’t mean the chronic health issues of the people of Ecuador have disappeared. Cleft palate, relentless knee pain, pain and immobility from significant burns, hernias, and gall bladder disease continue to be prevalent along with the challenges in a pandemic world. Blanca’s House is determined that when life gives us lemons, we will make that lemonade. In the past year and a half, private donors have funded the construction of the upper or second floor of the clinic in Guayaquil which is now complete.
So that we may easily continue making a difference in the lives of those who need it most no matter the circumstances, it is now time to construct a state-of-the-art clinic and surgical facility on the Ground Floor/Planta Baja. The people of Ecuador are still suffering; the hospitals are at capacity with COVID patients and facilities like the one we have planned are, for the most part, nonexistent. We will no longer be dependent upon the use of other hospital facilities in Ecuador. Whether our mission teams are in Ecuador when it’s safe to return or being used by our partner Ecuadorian doctors, Blanca’s House will have an up-to-date healthcare facility for our mission use.
 
  
 